
1151DP/GP型差压、压力变送器(带1199远传膜片)
1151 DP/GP型变送器带上1199型远传膜片装置(其种类详见表1~5、9~11)后,就成为1151DP/GP型远传压力变送器(见外型图及其零件图)


| 1199RTW | 螺纹安装远传膜片装置 | |||||
| 代号 | 清洗连接孔 | |||||
| 11 | 无 | |||||
| 21 | 有 | |||||
| 代号 | 远传装置膜片材料 | |||||
| A | 316LSST | |||||
| B | 哈氏合金C 276 | |||||
| C | 钽 | |||||
| 代号 | 结构材料 | |||||
| 11 | 上套为316SST安装环为碳钢,垫圈为白色石棉 | |||||
| 代号 | 下套材料 | |||||
| A | 316SST | |||||
| B | 哈氏合金C | |||||
| C | 碳锅(电镀) | |||||
| 代号 | 引压连接孔 | |||||
| 11 | 1/4”NPT(锥管螺纹) | |||||
| 12 | 3/8”NPT(锥管螺纹) | |||||
| 13 | 1/2”NPT(锥管螺纹) | |||||
| 15 | 1”NPT(锥管螺纹) | |||||
| 17 | 1-1/2”NPT(锥管螺纹) | |||||
| (不带清洗备孔) | ||||||
| 1199TRW 11 A 11 A 17 远传装置完整型号(典型) | ||||||

| 1199PFW | 扁平式远传膜片装置 | |||
| 代号 | 远传法兰规格 | |||
| 11 | 标准3”,最大工作压力,按ASA法兰耐压等级规定 | |||
| 代号 | 远传装置膜片材料 | |||
| A | 316LSST | |||
| B | 哈氏合金C | |||
| C | 钽 | |||
| 代号 | 远传法兰材料 | |||
| 11 | 316SST | |||
| 1199PFW 11 A 11 远传装置完整型号(典型) | ||||

| 1199RFW型 | 法兰安装远传膜片装置 | ||||
| 代号 | 法兰安装远传膜牌装置 | ||||
|
11 21 |
无 有 |
||||
| 代号 | 远传装置膜片材料 | ||||
|
A B C |
316LSST 哈氏合金C 钽 |
||||
| 代号 | |||||
| 11 | 上套为316SST,上套法兰为碳钢镀镉,密封垫圈为白色石棉 | ||||
| 代号 | 下套尺寸和材料 | ||||
|
A21 B21 E21 A41 B41 E41 A51 B51 E51 A71 B71 E71 A22 B22 E22 A42 B42 E42 A52 B52 E52 A72 B72 E72 A24 B24 E24 A44 B44 E44 A54 B54 E54 A74 B74 E74 |
1” 150* 316SST 1” 150* 哈氏合金C 1” 150* 碳钢 1-1/2” 150* 316SST 1-1/2” 150* 哈氏合金C 1-1/2” 150* 碳钢 2” 150* 316SST 2” 150* 哈氏合金C 2” 150* 碳钢 3” 150* 316SST 3” 150* 哈氏合金C 3” 150* 碳钢 1” 300** 316SST 1” 300** 哈氏合金C 1” 300** 碳钢 1-1/2” 300** 316SST 1-1/2” 300** 哈氏合金C 1-1/2” 300** 碳钢 2” 300** 316SST 2” 300** 哈氏合金C 2” 300** 碳钢 3” 300** 316SST 3” 300** 哈氏合金C 3” 300** 碳钢 1” 600*** 316SST 1” 600*** 哈氏合金C 1” 600*** 碳钢 1-1/2” 600*** 316SST 1-1/2” 600*** 哈氏合金C 1-1/2” 600*** 碳钢 2” 600*** 316SST 2” 600*** 哈氏合金C 2” 600*** 碳钢 3” 600*** 316SST 3” 600*** 哈氏合金C 3” 600*** 碳钢 |
||||
| 1199RFW A 11 A71 远传型装置完整型号(典型) | |||||
| 管道名义尺寸 | 额定压力等级 | D(MM) | H(mm) | D(mm) | 螺栓孔 | ||
| 分布直据mm | 数量 | 孔径mm | |||||
| 1” | 150 | 108(4) | 14.3(9/16”) | Φ66.5 | Φ79.4(31/8”) | 4 | Φ15.7 |
|
300 600 |
Φ124(4) | 17.5(11/16”) | Φ66.5 | Φ88.9 | 4 | Φ19.1 | |
| 11/2” | 150 | Φ127 | 17.5(11/16”) | Φ78.7 | Φ98.4 | 4 | Φ15.7 |
|
300 600 |
Φ156(6) |
20.6(13/16”) 22.2(7/8”) |
Φ78.7 | Φ114.3 | 4 | Φ15.7 | |
| 2” | 150 | Φ152 | 19.1(3/4”) | Φ95.25 | Φ120.7 | 4 | Φ19.1 |
|
300 600 |
Φ165(6) |
22.2(7/8”) 25.4(1”) |
Φ95.25 | Φ127 | 4 | Φ19.1 | |
| 3” | 150 | Φ190(7) | 23.8(15/16”) | Φ127 | Φ152.4 | 4 | Φ19.1 |
|
300 600 |
Φ210(8) |
28.6(11/8”) 31.8(11/4”) |
Φ127 | Φ168.3 | 8 | Φ22.4 | |

| 1199EFW | 插入式远传膜片装置 | ||||
| 代号 | 输入筒直径和接液部材料 | ||||
|
11 12 13 14 |
3”316SST不锈钢 3”哈氏合金C包镀层不锈钢 4”316 SST不锈钢 4” 哈氏合金C包镀层不锈钢 |
||||
| 代号 | 膜片材料 | ||||
|
A B C |
316SST 哈氏合金C 钽 |
||||
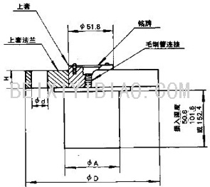
| 代号 | 插入筒长度 | ||||
|
20 40 60 |
50.8mm 101.6mm 152.4mm |
||||
| 代号 | 法兰规格和材料 | ||||
|
A11 A12 A13 |
150#有镀层碳钢,最大工作压力=1.97Mpa 300#有镀层碳钢,最大工作压力=5.1Mpa 600#有镀层碳钢,最大工作压力=9.9Mpa |
||||
| 1199EFW 11 A 20 A11 远传装置完整型号(典型) | |||||

| 管道名义尺寸 | 额定压力等级 | 上套法兰的参数 |
螺栓孔 |
||||
| 外径D(MM) |
厚度H (mm) |
螺孔 直径 D(mm) |
数量 | 螺孔分布直径mm | 孔径mm | ||
|
76.2 (3”) |
150 300 600 |
190(71/2”) 210(81/4”) 210(81/4”) |
23.8(15/16”) 28.6(11/8”) 31.8(11/4”) |
Φ19.1(0.75”) Φ22.4(0.88”) Φ22.4(0.885”) |
4 8 8 |
Φ152.4(6”) Φ168.3(65/8”) Φ168.3(65/8”) |
72.9 |
| 101.6(4”) |
150 300 600 |
22.8(9”) 254(10”) 273(103/4”) |
23.8(15/16”) 31.8(11/4”) 31.8(11/2”) |
Φ19.1(0.75”) Φ22.4(0.88”) Φ25.4(1.0”) |
8 8 8 |
Φ190(71/2”) Φ200(77/8”) Φ215.9(81/2”) |
96.0 |
| 1199SCW | 防污式远传膜片装置 | |||
| 代号 | 远传法兰规格 | |||
|
11 12 13 14 |
2#三脚卡口带毛细管型 3#三脚卡口带毛细管型 2#三脚卡口带毛细管型 3#三脚卡口带毛细管型 |
|||
| 代号 | 膜片材料 | |||
| A | 316SST | |||
| 代号 | 壳体材料 | |||
| 11 | 316SST | |||
| 1199SCW 11 A 11 远传装置完整型号(典型) | ||||

| 1199CAP | 毛细管 | |||||
| 代号 | 毛细管材料和尺寸 | |||||
|
11 13 |
316SST,内径为Φ0.71mm 316SST,内径为Φ0.71mm |
|||||
| 代号 | 变送顺端配件 | |||||
| A | 低容积法兰,316SST | |||||
| 代号 | 壳体材料 | |||||
|
05 10 15 20 25 |
1.524米 3.048米 4.572米 6.096米 7.620米 |
|||||
| 代号 | 远传法半端配件 | |||||
|
A C |
1/2-20UNF-2A螺纹,适用于RFW、RTW、SCW、EFW 1/2-20UNF-2A螺纹,适用于RFW、RTW、SCW、EFW |
|||||
| 代号 | 保护套管 | |||||
|
11 12 |
铠装300SST系列不锈钢 PVC护套,铠装300SST系列不锈钢 |
|||||
| 1199CAP 11 A 15 A 11 典型型号 | ||||||

| 1199CLC | 配耦接头 | ||||
| 代号 | 配耦接头配件材料和尺寸 | ||||
| 11 | 316SST 不锈钢,内径为Φ0.71mm | ||||
| 代号 | 变送器端配件 | ||||
| A | 低容积法兰,316SST | ||||
| 代号 | 配耦段长度(两配件之间) | ||||
|
20 40 |
50.8mm 101.6mm |
||||
| 代号 | 远传装置配件 | ||||
|
A00 B00 |
1/2-20UNF-2A螺纹,316SST 不锈钢 1/2-20UNF-2A螺纹,316SST 不锈钢 |
||||
| 1199CLC 11 A 40 A00 典型型号 | |||||

| 代号 | 远传填充液+ | 比重 | 温度稳定范围 |
| DC200 | DC200硅油 | 0.934 | -40~149℃ |
| DC704 | DC704硅油 | 1.07 | 15~315℃ |
| C51734-0001 | 惰性油 | 1.85 | -45~177℃ |
| SYL800 | SYL800硅油 | 0.934 | -45~205℃ |
| SYLXLT | SYLXLT硅油 | 0.85 | -73~135℃ |
| DC200—典型型号 |
| 1199CTW型 | 化工TEE型远传法兰 | |||
| 代号 | 类型 | |||
| 11 | 标准,最大工作压力6.89Mpa | |||
| 膜片材料和厚度 | ||||
|
A B |
316LSST不锈钢,厚度0.076mm 哈氏合金C-276 |
|||
| 代号 | 接液法兰材料 | |||
| 11 | 316SST不锈钢 | |||
| 1199CTW 11 A 11 远传装置完整型号(典型) | ||||

| 1199UCW型 | 管接式远传法兰 | |||
| 代号 | O型圆材料 | |||
| 11 | 聚四氟乙稀,最高工作压力13.78Mpa | |||
| 代号 | 膜片材料 | |||
| A | 316LSST不锈钢, | |||
| 代号 | 带螺母接液壳体材料 | |||
| 11 | 316SST不锈钢 | |||
| 1199UCW 11 A 11 典型型号 | ||||

| 1199SSW | 防污染槽罐用销式远传法兰 | |||
| 代号 | 样式 | |||
|
12 14 22 24 |
毛细管结构—伸长50.8mm 配耦结构—伸长50.8mm 毛细管结构—伸长152mm 配耦结构—伸长152mm |
|||
| 代号 | 膜片材料/O型圈材料 | |||
| A | 316LSST不锈钢/乙稀-丙烯橡胶 | |||
| 代号 | 接液壳体材料 | |||
| 11 | 316SST不锈钢 | |||
| 1199SSW 12 A 11 远传装置典型 | ||||

| 延伸长度 | A |
| 50.8 | 53.6 |
| 152 | 155.2 |
| 1151DP型 | 带远传的差压变送器 | |||||
| 1151GP型 | 带远传的差压变送器 | |||||
| 代号 | 测量范围 | |||||
|
4 5 6 7 8 |
0-6.22至0-37.29Kpa 0-31.1至0-186.45 Kpa 0-117.21至0-689.48 Kpa 0-0.345至0-2.07 Mpa 0-1.172至0-6.895Mpa |
|||||
| 代号 | 输出 | |||||
| E | 4-20mA DC带有可调阻尼 | |||||
| 代号 | 压力容室 插塞 隔离膜片 | |||||
|
12 22 |
碳钢镀镉 316SST 316LSST 316SST 316SST 316LSST |
|||||
| 代号 | 远传法兰 | |||||
|
S1 S2 |
一个远传法兰 根据表5、6、7、8和9……订货 二个远传法兰 |
|||||
| 代号 | 选件 | |||||
|
M1 M2 B1 B2 B3 |
0-100%线性刻度现场指示表 0-100%平方根刻度现场指示表(1151DP选用) 弯支架板装(Φ51mm管子) 弯支架板装 平支架板装(Φ51mm管子) |
|||||
| 1151GP 6 E 12 S1 B1 变送器完整型号(典型) | ||||||